Female Changing Room upgrade

We are excited to announce the upgrade of the Lido Aquatic Centre female changing rooms. This significant work will mean our female changing room will be closed from the 27th of May with a planned completion date of 12th September.

Temporary signage will be installed to advise female patrons of alternative toilet and shower facilities locations during the construction period. The changing room upgrade is part of several wider improvements to our facilities, including the current relining of both the top and bottom leisure pools.

We apologise for any inconvenience caused during the construction period and look forward to bringing you our new facilities in September.

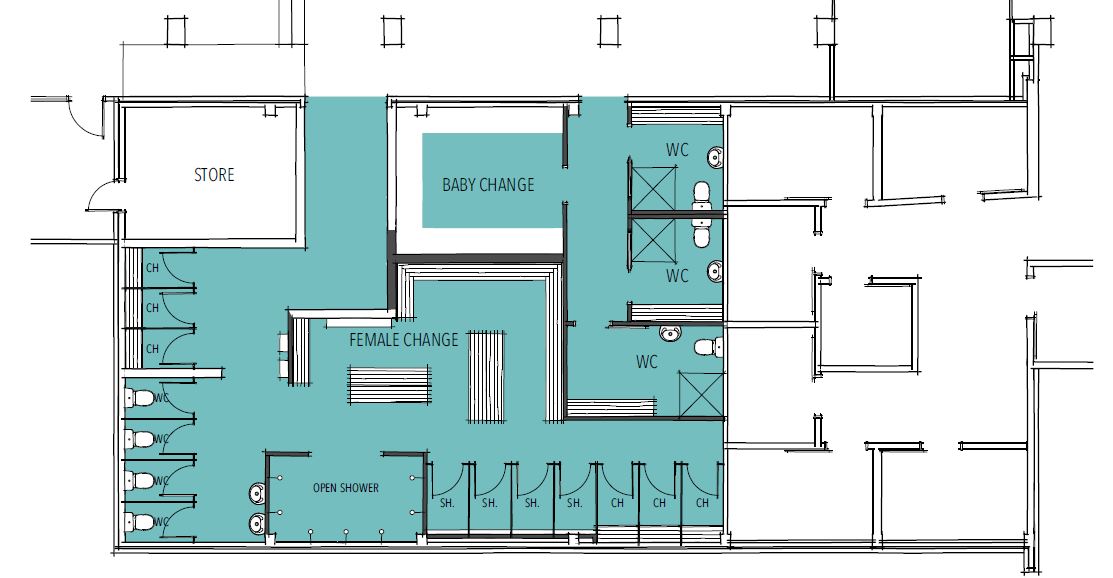
Female changing rooms concept plan

femalechangingroom lido.JPG

More News

Move Over Cancer — Join Us for a Fun Week at Lido Aquatic Centre!
Generic - Move Over Cancer - WebNews copy.jpg

Move Over Cancer — Join Us for a Fun Week at Lido Aquatic Centre!

Funds raised through Move Over Cancer go directly to the Cancer Rehabilitation Foundation (PINC & STEEL). Your donation supports the delivery of rehabilitation services to people who otherwise couldn’t afford it — restoring strength, reducing disability, easing pressure on families, and unlocking the survival benefits of exercise.

Mama Movement – 6 Week Postpartum Program
ccd254e2-b71c-419f-96f9-41a0db77fe15.jpg

Mama Movement – 6 Week Postpartum Program

A safe, supportive return to exercise for mums. Restore your pelvic floor & core, rebuild strength, and train alongside other mums who get it.

WHAT’S ON THIS SUMMER
Attractions-14-15-web-6.jpg

WHAT’S ON THIS SUMMER

Get ready for an action-packed summer at the Lido Aquatic Centre.

Lido Aquatic Centre Lido Aquatic Centre Lido Aquatic Centre Lido Aquatic Centre
Lido Aquatic Centre Lido Aquatic Centre Lido Aquatic Centre Lido Aquatic Centre
Lido Aquatic Centre Lido Aquatic Centre Lido Aquatic Centre Lido Aquatic Centre